Фильтр-пресс

Контактная информация
Фильтр-пресс это установка, специально сконструированная для производства мрамора. Он сделан из высококачественных материалов с применением новейших технологий, которые рассчитаны на особые характеристики мраморного осадка. Обеспечивает продолжительное отделение твердых частиц осадка и общее повторное использование сточных вод. Эта эффективная и рентабельная установка требует совсем немного работы по обслуживанию, вложенные деньги – полученные преимущества. Для работы не требуется химических реагентов, работает продолжительно и в автоматическом режиме.
Наш успех и продолжительное развитие основано на десятилетиях опыта работы с проблемами фильтрации, современными и испытанными конструкциями и специфическими решениями. Для преимущества наших Заказчиков мы предлагаем экономичные решения, специально сконструированные для индивидуального применения и составленного из модульных компонентов.
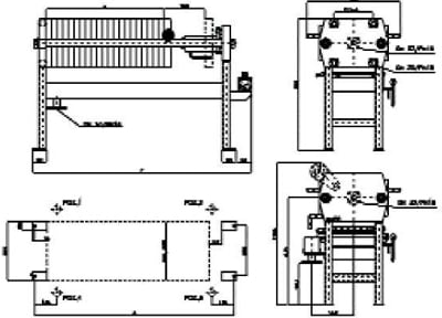
| Оборудование: — Ручная или гидравлическая часть — Моющая система для очистки тарелок и ткани — PP шарнирная тарелка -Гидромеханическая транспортировка тарелок — Рабочая платформа для обслуживания — Световые отражатели (Светлые занавеси) — Водосток для сбора фильтрата — Измеритель потока фильтрата — Фильтровальная ткань | ![]() |
Возможно покрытие частей фильтр-пресса, которые контактируют с водой специальным антикоррозийным покрытием.
| ТИПЫ ФИЛЬТРПРЕССА — Камерный | ![]() |
| КАМЕРНЫЙ ФИЛЬТРПРЕСС | ![]() | |
| -Размер тарелки | 400-1200 мм | |
| — Площадь фильтрации | 2.3-215 м2 | |
| — Содержимое | 0.026 — 3 м3 | |
| — Рабочее давление | вплоть до 1.6 Mpa | |
| — Толщина плитки | 15-50 mm | |
| МЕМБРАННЫЙ ФИЛЬТРПРЕСС | ||
| — Размер тарелки | 470-1200 мм | |
| — Площадь фильтрации | 3.5-215 м2 | |
| — Содержимое | 0.038 — 3 м3 | |
| — Рабочее давление | : up to 0.8 Mpa | |
| — Давление мембран | : up to 1.6 Mpa | |
| — Толщина плитки | 30 — 50 м | |

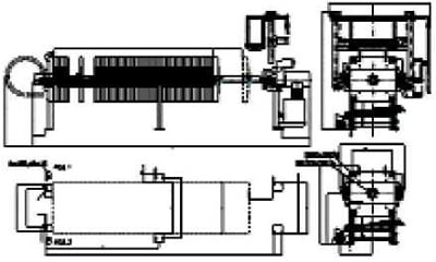
АВТОМАТИЧЕСКАЯ ТРАНСПОРТИРОВКА
ТАРЕЛОК ФИЛЬТРА
Автоматическое передвижение гидромехани ческое. Транспортер, который зафиксирован c круговой роликовой цепочкой, двигается вверх и вниз.Блокировка контролирует, чтобы одновременно поднималась только одна тарелка. Эта система автоматически двигает каждую тарелку одну за другой, до тех пор пока оператор неостановит процесс. В мембранном фильт-прессе сухиетвердые частицы могут быть собраны вплоть до 60-70%, концентрация твердых частиц должна быть минимально 5-10% для того чтобы получить хорошую плитку.

| 400 х 400 | 25мм | Толщина плитки | ||||||
| Кол-во камер | 10 | 15 | 20 | 25 | 30 | 35 | 40 | |
| Содержание (дм2) | Откр. | 26 | 39 | 52 | 65 | 78 | 91 | 104 |
| Закр. | 19,3 | 28,9 | 38,6 | 48,3 | 57,9 | 67,5 | 77,2 | |
| Площадь фильтрации (м2) | Откр. | 2,3 | 3,4 | 4,6 | 5,7 | 6,9 | 8,1 | 9,2 |
| Закр. | 1,8 | 2,7 | 3,6 | 4,5 | 5,4 | 6,3 | 7,2 | |
| А(мм) | 515 | 750 | 985 | 1220 | 1445 | 1690 | 1925 | |
| В(мм) | 1192 | 1427 | 1662 | 1897 | 2132 | 2367 | 2602 | |
| С(мм) | 1357 | 1592 | 1827 | 2062 | 2297 | 2532 | 2767 | |
| Вес (кг) | 440 | 470 | 495 | 520 | 550 | 580 | 610 | |

| 470 х 470 | 25мм | Толщина плитки | ||||||
| Кол-во камер | 10 | 15 | 20 | 25 | 30 | 35 | 40 | |
| Содержание (дм2) | Откр. | 38,7 | 58,0 | 77,4 | 96,7 | 116,0 | 135,0 | 154,8 |
| Закр. | 34,9 | 52,3 | 69,8 | 87,2 | 104,7 | 122,0 | 139,6 | |
| Площадь фильтрации (м2) | Откр. | 3,5 | 5,3 | 7,1 | 8,8 | 10,5 | 10,5 | 14,1 |
| Закр. | 3,2 | 4,8 | 6,4 | 8,0 | 9,6 | 9,6 | 12,8 | |
| А(мм) | 528 | 768 | 1008 | 1248 | 1488 | 1728 | 1928 | |
| В(мм) | 1205 | 1445 | 1685 | 1925 | 2165 | 2405 | 2605 | |
| С(мм) | 1377 | 1617 | 1857 | 2097 | 2337 | 2577 | 2777 | |
| Вес (кг) | 615 | 665 | 705 | 754 | 790 | 840 | 885 | |
![]()
Тарелки фильтра соотносятся с глубиной камер (мм):
— Тарелки камер: 15, 20, 25, 30
— Тарелки мембран : 30, 32, 40
Входящая мощность гидравлической установки: 3 kW, 380V
Технический дизайн может быть изменен.
АВТОМАТИЧЕСКАЯ ТРАНСПОРТИРОВКА ТАРЕЛОК

| 800 х 800 | 25мм | Толщина плитки | |||||||||||||||
| Кол-во камер | 20 | 25 | 30 | 35 | 40 | 45 | 50 | 55 | 60 | 65 | 70 | ||||||
| Содержание (дм2) | Откр. | 238,5 | 297,8 | 357,3 | 416,9 | 476,4 | 536,0 | 595,5 | 655,0 | 714,6 | 774,2 | 833,7 | |||||
| Закр. | 221,0 | 276,3 | 331,5 | 386,8 | 442,0 | 497,3 | 552,5 | 607,8 | 663,0 | 718,3 | 773,7 | ||||||
| Площадь фильтрации (м2) | Откр. | 20,8 | 26,0 | 31,2 | 36,4 | 41,6 | 46,8 | 52,0 | 57,2 | 62,4 | 67,6 | 72,8 | |||||
| Закр. | 19,2 | 24,0 | 28,8 | 33,6 | 38,4 | 43,2 | 48,0 | 52,8 | 57,7 | 62,5 | 67,3 | ||||||
| А(мм) | 1190 | 1475 | 1760 | 2045 | 2330 | 2615 | 2900 | 3185 | 3470 | 3755 | 4040 | ||||||
| В(мм) | 2194 | 2479 | 2764 | 3049 | 3334 | 3619 | 3904 | 4189 | 4474 | 4759 | 5044 | ||||||
| С(мм) | 3229 | 3514 | 3799 | 4084 | 4369 | 4654 | 4939 | 5224 | 5509 | 5744 | 6079 | ||||||
| Вес (кг) | 2580 | 2680 | 2790 | 2890 | 3000 | 3110 | 3210 | 3320 | 3420 | 3550 | 3670 | ||||||
Тарелки фильтра соотносятся с глубиной камер (мм):
— Тарелки камер: 15, 20, 25, 30, 32, 35, 38, 40, 45, 50
— Тарелки мембран : 30, 32, 40, 50
Входящая мощность электромотора: -гидравлической установки: 4 kW, 380 V
— шарнирная тарелка : 0,25 kW, 380 V
Технический дизайн может быть изменен.
АВТОМАТИЧЕСКАЯ ТРАНСПОРТИРОВКА ТАРЕЛОК

| 1000 х 1000 | 25мм | Толщина плитки | |||||||||||||||
| Кол-во камер | 40 | 50 | 60 | 70 | 80 | 85 | 90 | 95 | 100 | 105 | 110 | ||||||
| Содержание (дм2) | Откр. | 796,8 | 996,0 | 1195 | 1395 | 1594 | 1693 | 1793 | 1892 | 1992 | 2092 | 2191 | |||||
| Закр. | 717,6 | 897,0 | 1076 | 1256 | 1435 | 1524 | 1615 | 1704 | 1794 | 1883 | 1974 | ||||||
| Площадь фильтрации (м2) | Откр. | 67,4 | 84,5 | 101,1 | 118,0 | 134,8 | 143,3 | 151,7 | 160,0 | 168,5 | 176,9 | 185,4 | |||||
| Закр. | 61,72 | 77,15 | 92,58 | 108,0 | 123,4 | 131,2 | 138,9 | 146,6 | 154,3 | 162,0 | 169,7 | ||||||
| А(мм) | 2410 | 3000 | 3590 | 4180 | 4770 | 5065 | 5360 | 5655 | 5950 | 6245 | 6540 | ||||||
| В(мм) | 3847 | 4437 | 5027 | 5627 | 5617 | 6207 | 6502 | 6797 | 7092 | 7387 | 7977 | ||||||
| С(мм) | 4978 | 5565 | 6158 | 6748 | 7338 | 7633 | 7928 | 8223 | 8518 | 8813 | 9108 | ||||||
| Вес (кг) | 8350 | 9050 | 9750 | 10450 | 11150 | 11500 | 11850 | 12200 | 12550 | 12900 | 13250 | ||||||
Тарелки фильтра соотносятся с глубиной камер (мм):
— Тарелки камер: 15, 20, 25, 30, 32, 35, 38, 40, 45, 50
— Тарелки мембран : 30, 32, 40, 50
Входящая мощность электромотора: -гидравлической установки: 4 kW, 380 V
— шарнирная тарелка : 0,25 kW, 380 V
Технический дизайн может быть изменен.
АВТОМАТИЧЕСКАЯ ТРАНСПОРТИРОВКА ТАРЕЛОК

| 1200 х 1200 | 25мм | Толщина плитки | ||||||
| Кол-во камер | 60 | 70 | 80 | 90 | 100 | 110 | 120 | |
| Содержание (дм2) | Откр. | 1656 | 1932 | 2208 | 2484 | 2760 | 3036 | 3312 |
| Закр. | 1596 | 1962 | 2128 | 2394 | 2660 | 2926 | 3194 | |
| Площадь фильтрации (м2) | Откр. | 143,5 | 167,4 | 191,4 | 215,2 | 239,2 | 263,1 | 287,0 |
| Закр. | 137,4 | 160,3 | 183,2 | 206,1 | 229,0 | 251,9 | 274,8 | |
| А(мм) | 3887 | 4527 | 5167 | 5807 | 6447 | 7087 | 7727 | |
| В(мм) | 5345 | 5985 | 6625 | 7265 | 7905 | 8545 | 9185 | |
| С(мм) | 6410 | 7050 | 7690 | 8330 | 8970 | 9610 | 10250 | |
| Вес (кг) | 15400 | 16600 | 17200 | 18500 | 19300 | 20300 | 21400 | |
Тарелки фильтра соотносятся с глубиной камер (мм):
— Тарелки камер: 15, 20, 25, 30, 32, 35, 38, 40, 45, 50
— Тарелки мембран : 30, 32, 40, 50
Входящая мощность электромотора: -гидравлической установки:4 kW, 380 V
— шарнирная тарелка : : 0,25 kW, 380 V
Технический дизайн может быть изменен.
Получить бесплатную консультацию
Для получения более детальной информацией свяжитесь с нами
или оставьте свои контактные данные и мы обязательно Вам перезвоним.
Оставить заявку